Anne Imhof, Travis Scott, Rem Koolhaas, Charli XCX – dear creatives, startups, changemakers, and those obsessed with space and architecture, we have something for you.
San Gimignano Lichtenberg, Berlin: The 42.6 m-high tower with 300 m² of usable space and a powerful volumetric presence by transformer Arno Brandlhuber is now for sale—for €1,700,000. A sustainable investment in a built architectural manifesto and in the rising district of Berlin-Lichtenberg.
Context about Architect & Project
Request Documentation
Details
Status
For saleTo set the tone: your new place of work. Photos by Future Documentation
Why not join us for a walk through the tower.
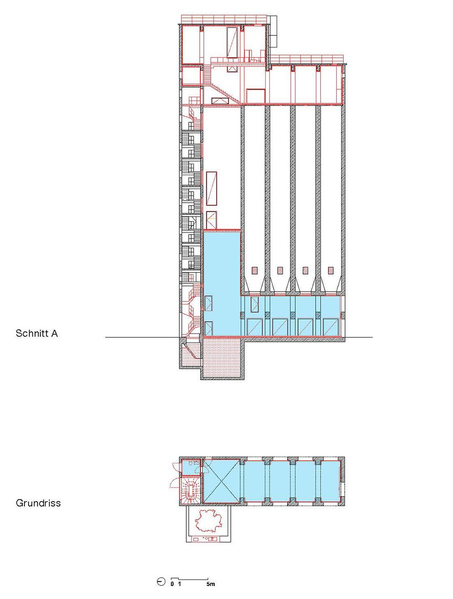
Ground Floor
Use: Workshop
Area: 106 m²
Min. clear ceiling height: 5 m
Max. clear ceiling height: 14 m
Features: WC / shower, underfloor heating
Numerous power connections
Integrated lighting concept
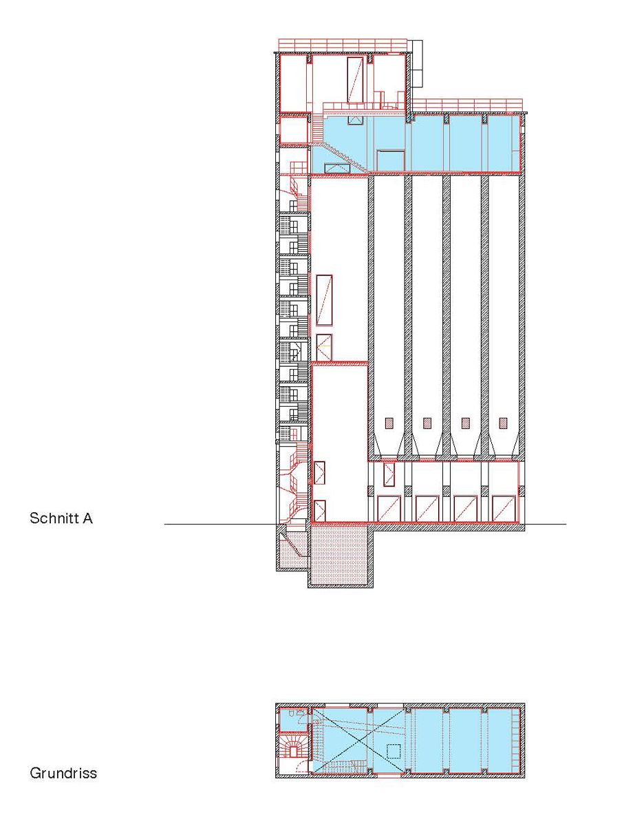
Balcony Level
Use: Workshop
Area: 31 m²
Entry height: 14.7 m
Max. clear ceiling height: 16 m
Features: Underfloor heating, preparation for internal wall insulation
Numerous power connections
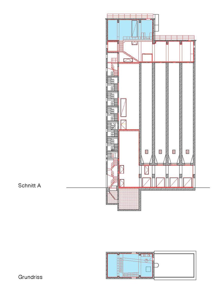
Tower Head Level 01
Use: Office, archive, storage
Total area: 108 m²
Entry height: 31.4 m
Min. clear ceiling height: 5 m
Max. clear ceiling height: 10.8 m
Features: Underfloor heating, WC / shower
Numerous power connections
Integrated lighting concept
Tower Head Level 02
Use: Storage, archive
Total area: 15 m²
Clear ceiling height: 2.6 m
Features: Underfloor heating
Numerous power connections
Integrated lighting concept
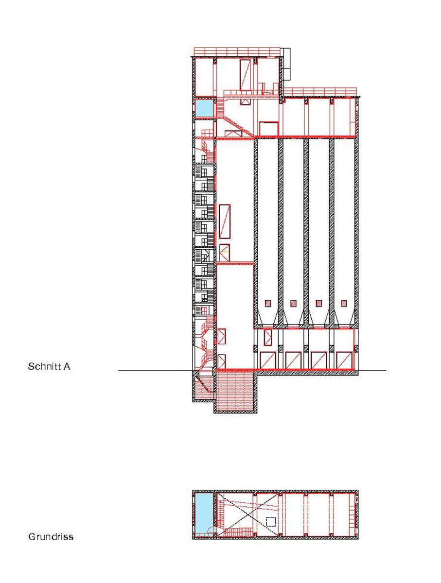
Tower Head Level 03
Use: Storage
Total area: 28.6 m²
Entry height: 37.2 m
Clear ceiling height: 5.1 m
Features: WC / shower, kitchen, underfloor heating
Numerous power connections
Integrated lighting concept
Terraces & Site (Workyard)
Roof Terrace I
Entry height: 37.2 m
Usable area: 74 m²
Load capacity: 100 kg/m²
Roof Terrace II
Entry height: 42.6 m
Usable area: 90 m²
Load capacity: 100 kg/m²
Site (Workyard)
Area: 757 m²
Features: Concrete outdoor kitchen for events, electric car charging station
Approved development potential: The building marked in red can be constructed in addition.
Expansion and access to vacant spaces
Extension according to §34 BauGB (surrounding development) until zoning plan is defined
Elevator: building permit for external lift
Subdivision of the property into three parcels has optimized development potential.
Approval of volumes is currently governed by §34 BauGB.
LOADING ..
Sell to Poeticwalls
We buy conversion properties and building land at market prices. A showcase development is guaranteed.




































































