Leben in Arkadien, am Rande Basels
Reinach, Siedlung In den Gartenhöfen: Atriumhaus Nr. 5 zu verkaufen – das Wohnhaus des Architekten Ulrich Löw
Ulrich Löw entwarf gemeinsam mit Büropartner Theodor Manz die Einfamilienhaus-Siedlung In den Gartenhöfen. Die Häuser, erbaut zwischen 1959 - 1962, bieten auch 2025 arkadische Qualitäten – Friede und Gelassenheit.
Dokumentation anfordernDetails
Status
Zu verkaufen
Haus Nr. 5 – das beseelte Original
Das original erhaltene Wohnhaus der Familie Löw, Teil des Siedlungs-Teppichs von 41 Einheiten, ist pragmatisch-modern, harmonisch, mit Akzent auf Privatsphäre: Eine aufgeräumte, sehr schweizerische Entsprechung der schwingenden Sechziger. Der unprätentiöse Schwung dieser Siedlung hat Charme. Gebauter Optimismus in einer Zeit, in der es nur nach oben ging.

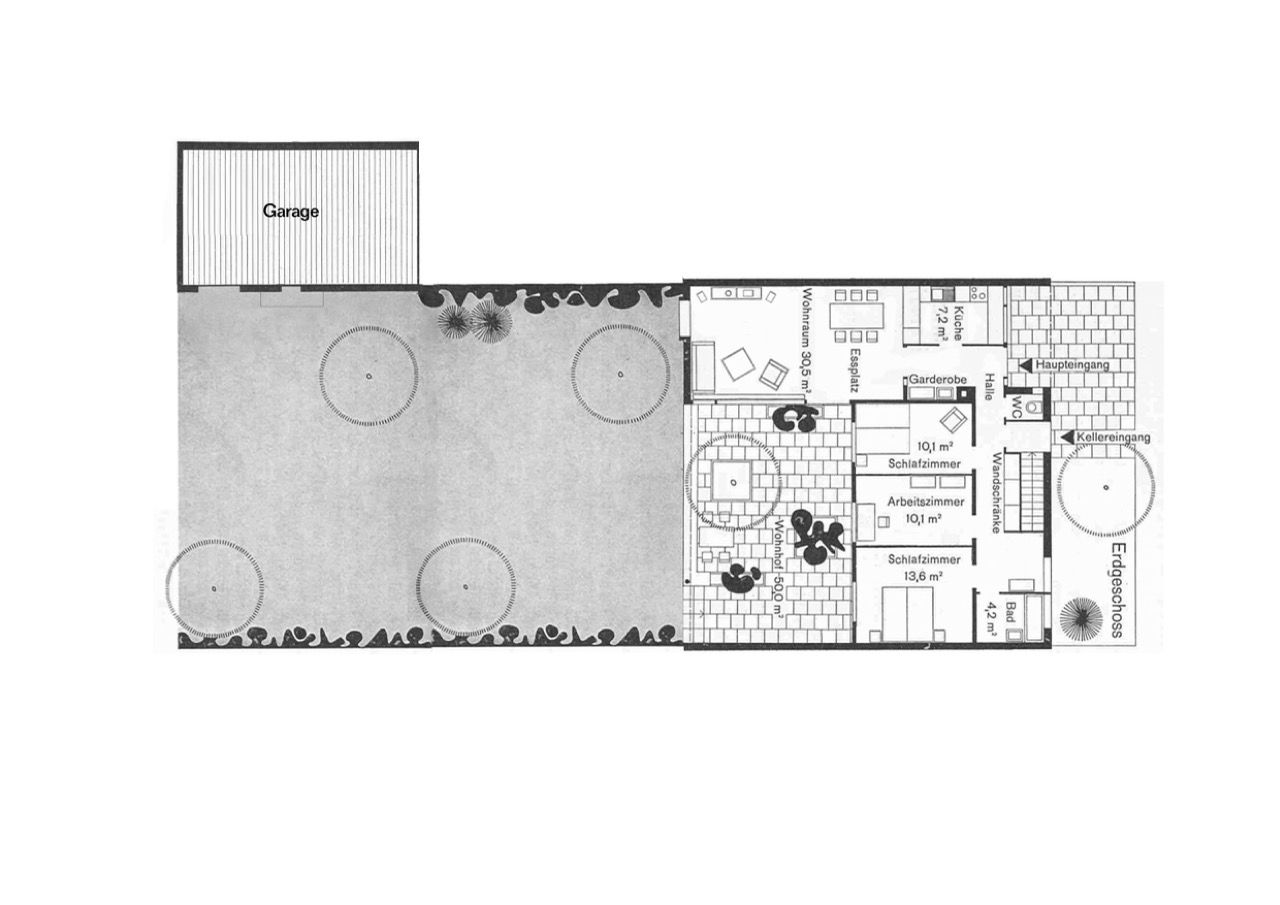
Lebensqualität auf 112m2
Die Löws sahen ihre drei Kinder im Haus Nr. 5 aufwachsen. Die Eltern verbrachten ihr weiteres Leben im Reinacher Heim. 2020 wurde Vaters Werk von den Kindern an die heutigen Besitzer verkauft.

Innen aussen
Das zentrale Atrium wird auf zwei Seiten vom Gebäude eingefasst, wodurch ein L-förmiger Wohngrundriss entsteht. Ans Atrium schliesst der grosse, eingewachsene Garten an. Die einzelnen eingeschossigen Häuser der Siedlung sind in Dreiergruppen zusammengefasst und mit den weiteren Häusergruppen durch Grünflächen, Wege, Garagenbauten und ‘Dorfplatz’ mit der Siedlung verwoben: Ein Teppich, der im divers gebauten Umfeld Orientierung vermittelt. Wir betreten ein geschütztes Idyll nah am Wald zum Bruderholz, das 65 Jahre nach Baubeginn Freude am Daheimsein vermittelt.

Denkmalgeschütztes Pionierprojekt, bis heute aktuell
Die Atriumsiedlung in den Gartenhöfen war ein Pionierprojekt, das dank vorbildlicher Verdichtung bis heute Bedeutung hat. Das innovative Gesamtbauwerk mit Wohnqualität ohne Ablaufdatum ist ein kantonal geschütztes Denkmal. Die Bauqualität hielt mit, wie auch die Landschaftsgestaltung. Wolf Hunziker wurde mit der Aussenraumbepflanzung und der Bepflanzung einzelner Wohngärten betraut.

Verdichtete Einfamilienhaussiedlung, Vorbilder
Die Søholm-Reihenhäuser von Arne Jacobsen sowie die Kingo-Häuser von Jørn Utzon, beide in Dänemark, inspirierten vermutlich die Architekten Ulrich Löw und Theodor Manz zur Siedlung In den Gartenhöfen.
All diese Prototypen für verdichtetes Wohnen im Einfamilienhaus bleiben aktuell, weil sie dem Ideal von familiärer Lebensqualität im geschützten Rahmen nahe kommen. Gern erinnere ich mich an das Lebensgefühl in meinem Atelierhaus in der Siedlung des Architekten Eduard Neuenschwander in Gockhausen.

Harmonische Eröffnung
Die vollständig überdachte Eingangsfront ist eine geometrische Komposition. Eingerahmt von rotem Backstein fasst das weisse Holzbalkenwerk sieben Fenstermodule, das grün-blaue Farbfeld der Eingangstür sowie den gelben Briefkasten.

Ideales Heim
Gut bespielbarer Grundriss. Ausstattung mit Wandschränken, Garderobe, Küchen- und Sanitäreinbauten: Das Haus ist wohnfertig. Die Materialien sind einfach und dauerhaft. Die Böden sind mit Solnhofener-Natursteinplatten verlegt. Ausnahme: Die neuen Linoleumbeläge der Schlafzimmer, auch hier wurde das originale Material verwendet.

Atrium, oh Atrium
Das Atrium ist der Fokus des Hauses: Ein geschützter, intimer Aussenbereich, von zwei Seiten umfangen, lichtdurchflutet. Massives rechteckiges Betonbecken, im Sommer mit blühenden Seerosen. Zugänglich vom Wohnraum, von Garten und Garage, vom grossen Schlafzimmer.

Das Wohn- und Esszimmer
Behaglicher Raum mit viel Licht und Harmonie. Durchreiche zur Küche. Einbezug des Aussenraums durch die Flügeltüre. Fensterfront vom Boden zur Decke, schöne Holzrahmenkonstruktion. Übers Eck gibt ein tiefes Blumenfenster den Blick in den Garten frei.

Garten
Der nicht einsehbare Wohngarten, gestaltet von Ulrich Löw’s Bruder Meinrad, Landschaftsarchitekt, schliesst an das Atrium an. Diverse Vogelarten, Igel, Molche sind die Mitbewohner. In der schönen, hohen Backstein Gartenmauer ist die Tür zur Garage eingelassen.


Exotische Freizeitbeschäftigung
Das kompakte Orchideen-Gewächshaus hat Ulrich Löw für eigene Mussestunden entworfen. Es ist vom Garten wie auch von der Garage her zugänglich.

Grüner Blick
Das Haus verfügt über drei Schlafzimmer. Oder zwei plus Büro.
Jeder Raum mit Sicht ins Atrium und zum Garten.



Bad
Auch das Bad ist restauriert und im Originalzustand erhalten, inklusive des Waschbeckens, der Badewanne, der Armaturen, der Badezimmermöbel, der Haken und der Steinfliesen. Die Gästetoilette finden wir beim Hauseingang.

Küche
Die Küche mit Durchreiche in den Essbereich ist ebenfalls originalgerecht restauriert und praktisch. Die massgeschneiderten Schränke, überhaupt alle Einbauten, sind währschaft und haben die gute Form. So auch das grosse, handgefertigte Waschbecken. Parallelen zu den Kingo-Küchen von Jørn Utzon sind nicht zu übersehen. Alle Küchengeräte wurden ausgetauscht.

Architekturgerechte Möblierung
Leuchten von Arne Jacobsen, sowie die Loop Gartensessel von Willy Guhl, stammen noch aus dem Haushalt der Familie Löw. Die Sitzmöbel von Charlotte Perriand und Le Corbusier, die beiden Bücherregale LB7 von Franco Albini, sind nicht mehr im Haus. Modernistische Funktionalität und Raumökonomie dieser Objekte passen heute wie früher zu Architektur und Geist. Die zwischen Boden und Decke eingespannten LB7 sind noch antiquarisch erhältlich und bringen italienische Formensprache ins Spiel.

Lage
Mit Tram 11 ist man in 15 -20 Minuten im Zentrum Basels. Der kurze Weg bietet weiteres architectural entertainment: Ernst Gisels brutalistische Kirche aus dem gleichen Baujahr (1960). Ihr Stundenschlag begleitet das Leben im Haus Löw. Zum virulenten Wohn-, Bildungs- und Gewerbe-Stadtteil Dreispitz sind es 10 Minuten. Der Reinach Campus der International School (Grades 9 - 12) ist in 15 Fussminuten erreicht. Bevorzugen Sie Shopping à la nature? Der nahe 40 Hektar Bio-Pionierbetrieb Bruderholzhof, der gerade auf biodynamische Landwirtschaft umstellt und feine Produkte anbietet, ist ihr Ziel. Überhaupt ist das Naturschutzgebiet Seiglermatten wunderbar für lange Spaziergänge.

Bauweise
Die Architekten Löw & Manz entwickelten für die Siedlung das LOMA-System, um den Rohbau mit wenigen industriell gefertigten Bauteilen zu erstellen. Fundament, Kellerwände, Deckenplatte zum Wohnraum sind aus Beton und Stahlbetonelementen. Bauphysikalisch steht das Flachdachhaus gut da. Oberirdisch bestehen die Aussenmauern aus Sichtbackstein, die Innenwände aus Isolierbackstein. Im Mauer-Sandwich dämmen Steinwollplatten. Der erreichte K-Wert 0.5 war damals sehr gut.

Heizung
Die generalüberholte Öl-Zentralheizung läuft effizient. Die Wärmeverteilung erfolgt über die originalen, gusseisernen Heizkörper. Nachhaltigkeit ist vorgeplant: Der Umbau auf eine Wärmepumpe wurde vom Denkmalschutz genehmigt, Detailpläne liegen vor.
Raumklima
Isolierfähigkeit und Wärmespeicherung schützen die Bewohner bemerkenswert gut vor Hitze, während es in der kalten Jahreszeit behaglich warm ist.
LOADING ..
Verkaufe an Poeticwalls
Wir kaufen Umbauliegenschaften und Bauland zu Marktpreisen, baukulturelle Vorzeigeentwicklung garantiert.


